AIチェック済み【富士見小・豊田中学区】駿河区有東1丁目(10期) 売土地
建築条件付き
お好きな間取り・デザインで建築可能です!
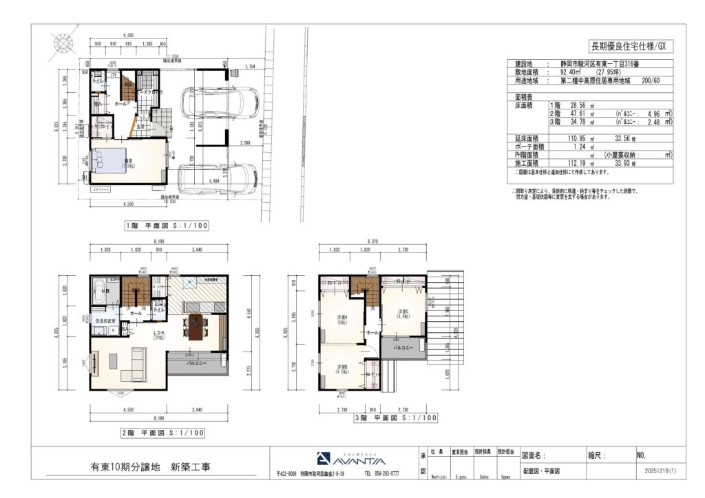
土地面積:92.40㎡(27.95坪)
地目:宅地
現況:更地
用途地域:第二種中高層住居専用地域
建ぺい率:60% 容積率:200%
道路:北東側 幅員約12.3mの公道に8.42m接する
〇 建物推奨プラン 〇
○木造軸組壁工法3階建 ○4LDK+WIC+SCL ○駐車2台
○建物面積 110.95㎡(33.56坪)
○建物金額 2,830万円
■検索→駿河区有東10期 住宅性能
【建物推奨プランご返済例】
●月々返済:88,610円●借入金額:5,080万円
●期間:50年、頭金:0円、ボーナス加算:99,523円(年2回あり)
[返済について]返済例は頭金0円「変動金利型」住宅ローン金利0.9%、50年返済で購入した場合の返済例です。年収やご年齢、その他条件により異なります。
返済終了まで金利が変動しないことを前提として試算しています。実際の返済金額は試算と異なる場合がございます。満85歳未満完済等の条件があります。
詳しくはお問い合わせください。
◆ご返済例について:金利0.9%(「変動金利型」のみ利用で最優遇後)
※別途、借入金額の2.2%の手数料が必要になります。
AIに聞いてみよう!
内容をコピーまたはドラッグ&ドロップして、物件の魅力をご確認ください。
★有東10期はChatGPTによると⇒総合評価:100点満点中90点 です★
AIによる客観チェックの考え方はこちら
みらいエコ住宅2026事業|GX志向型住宅
最大110万円の補助金対象物件
■ 建物推奨プラン おすすめPOINT ■
〇〇長期優良住宅+高耐震・高断熱の安心性能〇〇
高性能&安全+住みやすいを実現!!
○GX志向型住宅
○高気密住宅 (断熱等級6+C値実測で快適な暮らし)
○認定長期優良住宅
○スマートハウス(スマホで鍵・照明・防犯操作!IoT住宅が標準)
○太陽光発電システム搭載(太陽光発電+エネファームだから災害時も安心)
○制震装置付
○断熱性能高める樹脂サッシ
○40年建物長期保証付・10年住宅設備保証付
○住宅瑕疵担保責任保険(構造体10年、その他2年)
○地盤保証20年
〇物件金額5,080万円購入する場合、35歳未満で世帯年収が491万円以上の方、40歳未満で世帯年収515万円以上の方、45歳未満で世帯年収546万円以上の方は全額ローン可能です。
融資にご不安な方も是非!!
※50年返済・審査金利3.0%で計算した場合になります。その他ローンのお借入等がある場合や世帯収入に満たない場合はご相談下さい。
○建物はコミコミ価格になりますので別途諸経費(金融諸経費・火災保険・登記)が約200万円程で収まります。
Location/毎日の移動が短い、ストレスの少ない住環境
・小・中学校や保育施設も徒歩圏内で、子育て世代にも安心の環境
・徒歩3〜9分圏内にコンビニ・スーパー・ドラッグストアがそろい、毎日のお買い物に便利
・銀行・郵便局も徒歩5〜9分。忙しい時でもスムーズに用事が済ませられます
Access/アクセス & 通学利便性
【学区】
・静岡市立富士見小学校まで1100m(徒歩14分/自転車6分)
・静岡市立豊田中学校まで550m(徒歩7分)
【交通機関】
・しずてつジャストライン バス停「静岡総合庁舎前」まで280m(徒歩4分)
・JR東海道線「静岡」駅まで2000m(徒歩25分/自転車10分)
・静岡鉄道静岡清水線「新静岡」駅まで2200m(徒歩28分/自転車11分)
Performance/太陽光発電+エネファームシミュレーション
【ご家族構成:4名、太陽光発電XSOL:6.83KW、太陽光発電量:8,471Kwh/年】
SHIZGASでんき(おうちプラン2)60A/セットでずーっと割・創エネ割の場合(比較はエネファーム+太陽光対と給湯器エコジョーズ)
当初1年目~10年間のランニングコストは約1,816,000円節約になり、エネファーム+太陽光設置による月平均貢献金額約15,000円が節約になります。
1年目~20年間のランニングコストでは約4,110,000円の節約になり、エネファーム+太陽光設置による月平均貢献金額約17,000円が節約になります。
※1年~10年間の太陽光販売料金は静岡ガスへ譲渡になり、11年目からの太陽光販売料金はお施主様の収入になります。売電単価:8.7円/Kwhで計算した場合です。
□環境性に優しく二酸化炭素の削減量は6,030kg-CO2/年
(二酸化炭素を4,000kg削減すると,杉の木約456本が1年で吸収するCO2と同じ削減量となります。)
■道路:北東側 幅員12.3mに8.42m接する
■売主につき仲介手数料無料
■検索→20年間で差がつく、AVANTIA五朋建設の住宅価値
土地の未公開物件、取扱多数ございます♪
業者様からのお問合せも大歓迎です。
仲介手数料お支払い致します。
また、建売用地を探しています。
1区画~でもお気軽にご相談下さい。
物件価格:土地2250万円
★教育機関
静岡市立富士見小学校まで1100m(徒歩14分/自転車6分)
静岡市立豊田中学校まで550m(徒歩7分)
あけぼの保育園まで500m(徒歩7分)
葵保育園まで750m(徒歩10分)
★交通機関
しずてつジャストライン バス停「静岡総合庁舎前」まで280m(徒歩4分)
JR東海道線「静岡」駅まで2000m(徒歩25分/自転車10分)
静岡鉄道静岡清水線「新静岡」駅まで2200m(徒歩28分/自転車11分)
★買物施設
ファミリーマート(静岡有明西店)まで180m(徒歩3分)
ローソン(静岡八幡五丁目店)まで280m(徒歩4分)
ザ・ビッグ(静岡豊田店)まで400m(徒歩5分)
文具館コバヤシ(豊田店)まで450m(徒歩6分)
ケーズデンキ(静岡駿河店)まで500m(徒歩7分)
100えんハウス レモン(小黒店)まで550m(徒歩7分)
イトーヨーカドー(静岡店)まで700m(徒歩9分)
セブン-イレブン(静岡豊田3丁目店)まで700m(徒歩9分)
ファミリーマート(静岡富士見台店)まで1000m(徒歩13分/自転車5分)
杏林堂薬局(静岡登呂店)まで1100m(徒歩14分/自転車6分
★金融機関
静岡南郵便局まで350m(徒歩5分)
しずおか焼津信用金庫(小黒支店)まで350m(徒歩5分)
静岡銀行ATM(イトーヨーカドー静岡店)まで700m(徒歩9分)
★その他
有明公園まで350m(徒歩5分)
八幡山公園まで550m(徒歩7分)
- 種類
- 売土地
- 物件名
- 売土地 有東10期
- 所在地
- 静岡市駿河区有東1丁目16-12 Google mapで確認
- 交通
- しずてつジャストラインバス停「静岡総合庁舎前」徒歩4分
- 区画数
- 1区画
- 土地面積
- 92.40㎡(27.95坪)
- 地目
- 宅地
- 用途地域
- 第二種中高層住居専用地域
- 建ぺい率
- 60%
- 容積率
- 200%
- 価格
- 2250万円
- 学区
- 富士見小・豊田中学区
- 取引形態
- 売主

20251218_000001 3:4-300x225.jpg)



