【稲葉小・藤枝中学区】藤枝市堀之内(1期1号地) デザイナーズハウス
ひろびろとした土地とゆったりしたデザイナーズ空間
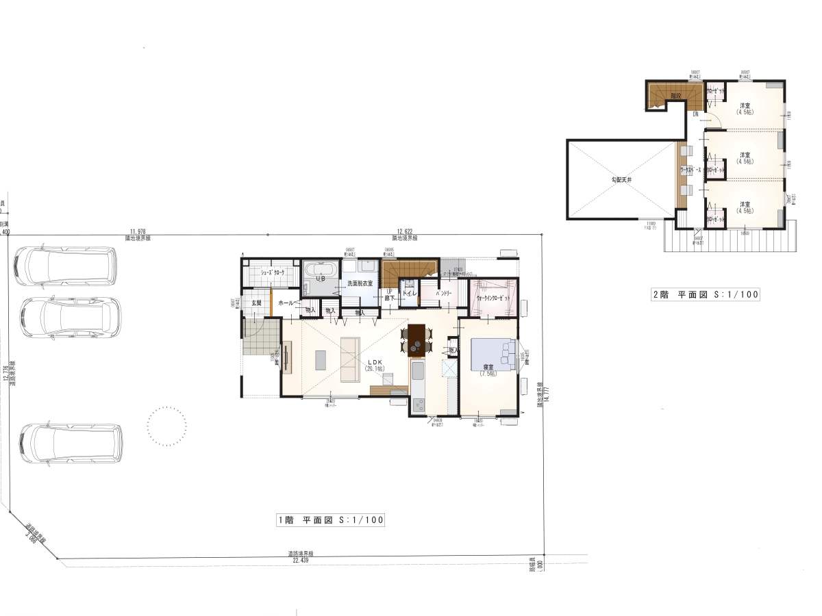
玄関横のシューズクローク、寝室のWICだけでなく、キッチンにはパントリー!
広いお庭で家庭菜園やガーデニングも楽しめそうです。
見学随時受付中
ご希望の方は☎0800-200-0082まで!
堀之内1期1号地 住宅性能
▢耐震等級 最高等級3
▢断熱等性能等級 最高等級7の内 等級6
▢一エネ消費量等級 最高等級6
▢維持管理対策等級 最高等級3
▢劣化対策等級 最高等級3
【新年の感謝を込めて】
新しい年、新しい住まいで始める暮らし。今だけのお得な住まい!
みらいエコ住宅2026事業 GX志向型住宅 110万円公表!!
【ご返済例】
●月々返済:78,465円●借入金額:4590万円●期間:50年、頭金:0円、ボーナス加算:99,523円(年2回あり)
◆ご返済例について:金利0.9%(「変動金利型」のみ利用で最優遇後)
※別途、借入金額の2.2%の手数料が必要になります。
●物件金額4,590万円購入する場合、35歳未満で世帯年収が444万円以上の方、40歳未満で世帯年収466万円以上の方、45歳未満で世帯年収493万円以上の方は全額ローン可能です。
融資にご不安な方も是非!!
※50年返済・審査金利3.0%で計算した場合になります。その他ローンのお借入等がある場合や世帯収入に満たない場合はご相談下さい。
■Point1/周辺環境
・藤枝市立稲葉小まで1100m、藤枝市立藤枝中学校まで1700m
・藤枝市自主運行バス「総合運動公園入口」まで300m
・藤枝バイパス谷稲葉ICまで800mだから交通アクセス良好!
・藤枝総合運動公園が近いので家族でスポーツや趣味のトレーニングにピッタリの環境です
・近隣にはスーパー・コンビニ・ドラッグストアなど生活に便利なお店が多数あります。
・クリニックや歯科もありますので安心です。
・静清バイパス、清水のインターチェンジにも近いので、お出かけにも便利です。
■Point2/暮らしやすさ
・お子さまの宿題も見守れる、ママにうれしいカウンター付きリビング」
・「家族が自然と集まる、ひろびろ20帖の快適リビング」
・「勉強も家事もはかどる、“賢く使える”ひろびろ空間」
・「片づけ上手になれる、収納上手なリビング設計
・寝室には、衣類など充分に収納できるウォークインクローゼットがあるのもうれしい設計です。
各居室にもクローゼットが設置されているので、ご家族それぞれの衣類など、収納できます。
■ Point3/建物
〇〇長期優良住宅+高耐震・高断熱の安心性能〇〇
高性能&安全+住みやすいを実現!!
○GX志向型住宅
○高気密住宅 (断熱等級6+C値実測で快適な暮らし)
○認定長期優良住宅
○スマートハウス(スマホで鍵・照明・防犯操作!IoT住宅が標準)
○太陽光発電システム搭載(太陽光発電+エネファームだから災害時も安心)
○制震装置付
○断熱性能高める樹脂サッシ
○40年建物長期保証付・10年住宅設備保証付
○住宅瑕疵担保責任保険(構造体10年、その他2年)
○地盤保証20年
■ POINT4/ 光熱費&環境に優しい
【ご家族構成:4名、太陽光発電XSOL:6.83KW、太陽光発電量:8,638Kwh/年】
SHIZGASでんき(おうちプラン2)60A/セットでずーっと割・創エネ割の場合(比較はエネファーム+太陽光対と給湯器エコジョーズ)
当初1年目~10年間のランニングコストは約1,146,000円節約になり、エネファーム+太陽光設置による月平均貢献金額約9,550円が節約になります。
1年目~20年間のランニングコストでは約2,770,000円の節約になり、エネファーム+太陽光設置による月平均貢献金額約11,500円が節約になります。
※1年~10年間の太陽光販売料金は静岡ガスへ譲渡になり、11年目からの太陽光販売料金はお施主様の収入になります。売電単価:8.7円/Kwhで計算した場合です。
□環境性に優しく二酸化炭素の削減量は4,648kg-CO2/年
(二酸化炭素を4,000kg削減すると,杉の木約456本が1年で吸収するCO2と同じ削減量となります。)
■Point5/売主につき仲介手数料無料
当社で設計・施工・販売しているため仲介手数料が不要、もしもの時はすぐにご相談いただけるため買った後も安心です。
20年間で差がつく、AVANTIA五朋建設の住宅価値
👇
| 長期優良住宅+高気密・高断熱の総合メリット | ||
| 1️⃣ 建物価値の差(20年後) | ||
| ★新築時の建物評価額が2,500万円の場合★ | ||
| 一般住宅:建物価値はほぼゼロ | ||
| 長期優良住宅:250〜500万円の価値が残る可能性 | ||
| ➡ 差額:250〜450万円 | ||
| なぜ価値が残るのか(査定の仕組み) | ||
| 新築時建売住宅の面積平均は28坪前後⇒AVANTIA五朋建設では平均32坪前後 | ||
| 木造評価年数を22年と計算した場合、20年後坪3.5万円で4坪の差の為=3.5万円x4坪=16万円 | ||
| ➡ 差額:16万円
|
||
| 一般住宅
↓ |
長期優良住宅
↓ |
|
| 性能が不明 | 性能が証明されている | |
| 劣化対策が弱い | 劣化対策等級3 | |
| 維持管理記録なし | 維持管理記録が残る | |
| →買主リスクが高い | →査定が10〜20%上乗せ | |
| 2️⃣ 固定資産税の優遇 | ||
| 年間12万円の場合: | ||
| 一般住宅:12万円 × 3年 × 1/2 = 18万円 | ||
| 長期優良住宅:12万円 × 5年 × 1/2 = 30万円 | ||
| ➡ 差額:12万円お得 | ||
| 3️⃣ AVANTIAの保証・メンテナンス | ||
| ■ 外壁メンテナンス | ||
| 20年目に大規模メンテナンス 【光触媒系の外壁仕様の為、10年目の塗り替え不要・10年目の外壁メンテナンスは不要】 | ||
| 2階建塗り替え費用(32坪):130万円 | ||
| 3階建塗り替え費用(33坪):152万円 | ||
| ➡ 差額:20年間で130〜152万円の差 | ||
| ■ 10年目に必要なメンテナンス(有料) | ||
| シロアリ点検(有料) | ||
| バルコニー防水工事(有料) | ||
| → 長期保証継続に必須
|
||
| ■ 保証内容 | ||
| 雨漏り保証:20年 | ||
| 建物保証:最長40年 | ||
| ※10年ごとの有料メンテナンスが必要
|
||
| ■ 特徴 | ||
| 初期性能を長く維持できる設計 | ||
| 10年目外壁メンテ不要でも20年雨漏り保証 | ||
| 計画的メンテで価値と安心を長期維持 | ||
| 4️⃣ 住宅ローン控除の優遇 | ||
| 借入額が同じなら控除額は同じ。 | ||
| ただし上限額の違いで年間数万〜十数万円の差。 | ||
| 概算例 | ||
| 借入3,000万円:21万円 × 13年 = 273万円控除 | ||
| 借入5,000万円:35万円 × 13年 = 455万円控除 | ||
| 一般住宅との差は最大182万円 | ※住宅ローン減税の還付は「所得税+住民税の一部」が上限 | |
| 5️⃣ 光熱費削減(GX志向型住宅) | ||
| 年間光熱費(電気+ガス) | ||
| 住宅仕様 | 年間光熱費 | 差額 |
| 一般省エネ住宅 | →239,000円(太陽光無し) | 0円 |
| 高気密・高断熱GX志向型住宅 | →155,350円(太陽光無し) | 83,650円削減 |
| 五朋建設の建物は【高気密・高断熱GX志向型住宅】のため | ||
| 一般省エネ住宅の年間光熱費が239,000円に対し五朋建設の建物は155,350円 | ||
| 比較すると年間 約83,650円の削減になります | ||
| 20年間のメリット | ||
| 83,650円 × 20年 = 1,673,000円にもなります | ||
| 6️⃣ 太陽光+エネファームの経済効果(4人家族想定) | ||
| 太陽光:5.78kWの場合 | ||
| 発電量:7,265kWh/年 | ||
| 【経済効果】 | ||
| 1〜10年目の場合:1,142,600円の節約(年間約9,500円) | ||
| 1〜20年目の場合:2,684,182円の節約(年間約11,100円) | ||
| ※売電は11年目から施主収入を含む(8.7円/kWh) | ||
| CO₂削減効果 | ||
| 5,380kg-CO₂/年削減 | ||
| → 杉の木 約456本が吸収する量に相当 | ||
| 📌 総まとめ:長期優良住宅+高性能仕様の総合メリット
|
||
| 項目 | メリット額 | |
| 建物価値の差 | →250〜450万円 | |
| 一般的な建売住宅の面積差額 | →16万円 | |
| 固定資産税の優遇 | →12万円 | |
| 外壁メンテ差 | →130〜152万円 | |
| 光熱費削減(20年) | →167万円 | |
| W発電の経済効果(20年) | →268万円 | |
| 総合メリット(概算) | →約843〜1065万円以上 | |
土地の未公開物件、取扱多数ございます♪
業者様からのお問合せも大歓迎です。
仲介手数料お支払い致します。(3%+6万円)
また、建売用地を探しています。
1区画~でもお気軽にご相談下さい。
物件価格:4,590万円
返済金額:月々78,465円 ボーナス加算99,523円(年2回)
今の家賃と比べて如何でしょうか?
稲葉小学校1100m
藤枝中学校1700m
いなばこども園500m
藤枝市自主運行バス停「総合運動公園入口」300m
JR東海道線「藤枝」駅4400m
セブンイレブン藤枝堀之内店450m
ミニストップ藤枝谷稲葉IC前店700m
ウエルシア藤枝茶町店1800m
V・drug藤枝茶町店2000m
ローソン藤枝茶町一丁目店2100m
しずてつストア駿河台店2300m
KOマート藤枝志太店2600m
スーパーマーケットバロー藤枝店3100m
藤枝茶町郵便局1700m
JA大井川稲葉支店280m
しずおか焼津信用金庫藤枝上支店2700m
堀之内ふれあい広場110m
藤枝総合運動公園湖畔の広場500m
〇長期優良住宅とは〇
長期優良住宅とは、国が定めた基準をクリアし認定された「長持ちする、質の高い家」になります。 認定を受けるには、耐震性や省エネ性、断熱等性能、住戸面積、維持管理の容易性など複数の基準を満たした住宅の事です。
○長期優良住宅 メリット〇
■固定資産税
固定資産税とは不動産を所有している場合、毎年納めなければならない税金です。
住宅を新築で取得した際には、固定資産税は3年間軽減されますが、長期優良住宅であれば、軽減期間が5年に延長されます。
■贈与税非課税枠
不動産購入資金を親から援助してもらった際には、一定額が非課税となります。
消費税課税物件を購入する場合、以下の表の金額が非課税の対象です。
一般住宅の購入時には、親からの援助額500万円までは非課税になりますが、省エネ等住宅であれば1,000万円まで拡大されます。長期優良住宅は省エネ等住宅に該当するため、1,000万円までは贈与税がかからず、非課税扱いです。
■フラット35金利優遇
フラット35では、長期優良住宅などの質の高い住宅を購入する際に、一定期間金利を引き下げる「フラット35S」という商品を用意しているためです。
フラット35Sでは、借入当初から5年間、金利を0.5%引き下げられます。
■所得税における住宅ローン控除での優遇
住宅を購入した場合は新築・中古住宅は最大13年間、年末時点での住宅ローン残高の0.7%が所得税から控除されます。(令和6年度税制改正大網により、5年間延長がされ2030年末までに入居した場合に適用されます。)
対象となる住宅ローンの限度額は、長期優良住宅は5,000万円です。一般の住宅の上限である3,000万円と比べると優遇されています。仮に上限まで住宅ローンを借りて、それぞれ13年間で返済した場合、最大で182万円ほどの差になります。
■不動産取得税が減税
長期優良住宅では、不動産を購入した際にかかる不動産取得税の控除額が、一般住宅より多くなります。一般住宅の控除額は1,200万円までですが、長期優良住宅は1,300万円までです。(適用期間は、2026年3月31日までに取得)
固定資産税評価額が同じ3,000万円として、不動産取得税を計算してみます。
一般住宅では「不動産取得税=(固定資産税評価額-1,200万円)×3%=(3,000-1,200)×3%=54万円」です。
一方、長期優良住宅の場合、「不動産取得税=(固定資産税評価額-1,300万円)×3%=(3,000-1,300)×3%=51万円」となります。
■地震保険料の割引が受けられる
長期優良住宅は地震保険料の保険料割引対象です。長期優良住宅の認定基準には耐震性の項目があり、「耐震等級2以上」を満たしているため、優遇措置が受けられます。
耐震等級2の割引率は30%です。しかし、住宅によっては、耐震等級2より耐震性が高い耐震等級3の割引が適用されます。耐震等級3(最高等級)の割引率は50%です。
○GX志向型住宅とは○
GX志向型住宅とは、グリーントランスフォーメーション(GX)の考え方を取り入れた次世代型の住宅です。GX志向型住宅は高い断熱性能に加え、エネルギー消費を抑えた設備と再生可能エネルギーの導入によってエネルギー消費量をゼロ以下にしていきます。
グリーントランスフォーメーション(GX)とは、環境負荷を減らしつつ、社会全体を持続可能な形へと転換する取り組みのことです。具体的には、CO2排出の削減、再生可能エネルギーの普及、資源の有効活用を柱としています。近年、地球温暖化が問題視される中、住宅業界においてもGXへの取り組みが強化されてきました。ゼロ以下にしていきます。新たな省エネ住宅の区分として注目を集めています。
○GX志向型住宅メリット○
◼︎ 環境に優しい
GX志向型住宅は、快適で心地よい住環境を提供するだけでなく、二酸化炭素の排出量を抑制し、環境保全にも寄与します。これにより、地球環境に優しい選択ができます。
◼︎ 光熱費の削減
GX志向型住宅は、優れた断熱性能と省エネルギー性能を備えているため、冷暖房の効率が良く、年間を通して光熱費を抑えることができます。これにより、長期的に見ても経済的な負担を軽減することができます。
〇高気密住宅とは〇
建物の隙間を可能な限り減らし、外部からの空気の侵入や内部の空気の漏れを防ぐことで、室内の温度を一定に保ちやすくした住宅になります。これにより、冷暖房効率が向上し、光熱費の削減や年間を通じた快適な室内環境が実現できます。
〇高気密住宅メリット〇
■快適な室内環境: 外気の影響を受けにくく、年間を通して室温を一定に保ちやすいため、快適に過ごせます。
■光熱費の節約: 冷暖房効率が向上し、電気やガスなどの燃料コストを削減できます。
■ヒートショックの予防: 部屋間の温度差が少なくなるため、ヒートショックのリスクを軽減できます。
■遮音・防音性の向上: 隙間が少ないため、外部の騒音を遮断し、室内の音漏れも防ぎます。
■結露・カビの抑制: 湿度をコントロールしやすくなり、結露やカビの発生を抑え、建物の劣化を防ぎます。
〇 資産価値の向上〇
環境性能が高い住宅は、一般的な住宅よりも市場での評価が上がりやすいです。これからもその価値が増すことが予想され、賃貸や売却の際に有利に働く可能性があります。これにより、資産としての安定性が増します。
○建物価格には消費税・全室LED照明・カーテン・カーテンレール・網戸・Low-eガラス・LDK用エアコン1台・外構工事・食洗機・浴室乾燥暖房機・TVドアホン・宅配BOX・制震装置を含みます。
○建物はコミコミ価格になりますので別途諸経費(金融諸経費・火災保険・登記)が約200万円程で収まります。
【AVANTIA静岡支社(五朋建設)は不動産のハウジングアドバイザーです】
●司法書士、土地家屋調査士、融資の専門分野の方と連携してお客様にとっての最適なご提案をさせて頂き、笑顔あふれるマイホームづくりのお手伝いを致します。
●住宅ローンのプロによるお客様限定の資金計画をご提案致します。
●「外国籍・母子父子家庭・他の借入あり」等、不安がある方もお気軽にご相談ください!
- 種類
- 新築住宅
- 物件名
- 新築住宅 堀之内1期1号地
- 所在地
- 藤枝市堀之内527番地の6 Google mapで確認
- 交通
- 藤枝市自主運行バス「総合運動公園入口」 徒歩4分
- 区画数
- 2区画
- 土地面積
- 363.30㎡(109.89坪)
- 地目
- 宅地
- 用途地域
- 無指定
- 建ぺい率
- 30%
- 容積率
- 50%
- 建物面積
- 110.75㎡ (33.50坪)
- 価格
- 4,590万円
- 構造・工法
- 木造軸組壁工法・制震装置付 2階建
- 建築年月
- 2025年5月完成
- 間取り
- 4LDK+シューズクローク+WIC
- 駐車場
- 10台以上可
- 建築確認番号
- 第2025確認建築静建住ま09732号
- 学区
- 藤枝市立稲葉小・藤枝市立藤枝中学区
- 取引形態
- 売主

-300x225.jpg)



